Vaillant Ecotec Plus Wiring Diagram / Ask Vaillant Domestic Boilers Vaillant / Offline vaillant boiler wiring diagram.. Ive been asked to connect the mains supply and room stat to the new valliant combi boiler. Offline vaillant boiler wiring diagram. Exploded view diagrams and parts lists for the vaillant ecotec plus 831 manual over 18,000 spares lines available for delivery my account sign in or register Wires i have available are red, blue, yellow and earth. The ecotec plus range of system boilers is available in a wide range of output models including 12, 15, 18, 24, 30 and 37kw, meaning that there is a suitable model for almost any home.

Boiler wiring diagram (vaillant ecotec 28 pro): Nov 30, hi all,has anyone ever wired a vaillant ecotec plus combi boiler.i am tomorrow but boy does not have instructions/wiring wiringall.com a. Sam11, 2 jan , in. The vaillant group cannot accept any responsibility for any reliance upon such information, any omissions or any subsequent loss or damage.vaillant group recommends that only qualified. The ecotec plus range of system boilers is available in a wide range of output models including 12, 15, 18, 24, 30 and 37kw, meaning that there is a suitable model for almost any home.

Wiring A Heatmiser Neostat To Vaillant Ecotec Plus 824 Screwfix Community Forum
Wiring A Heatmiser Neostat To Vaillant Ecotec Plus 824 Screwfix Community Forum from community.screwfix.com
If you can't find what you're looking for, please contact us at literature@vaillant.co.uk and we'll send the correct document directly to you. You will then need to work with the l, n, 3 and 4 pins to hook your combi boiler up. View and download vaillant ecotec pro installation and maintenance instructions manual online. It shows the components of the circuit as simplified shapes, and the talent and signal friends between the devices. The ecotec plus range of system boilers is available in a wide range of output models including 12, 15, 18, 24, 30 and 37kw, meaning that there is a suitable model for almost any home. Interconnecting wire routes may be shown approximately, where particular receptacles or fixtures must be on a common circuit. This loop above needs to be removed in order to install your hive. I have a vaillant ecotec plus 837 boiler to which i am trying to attach a new honeywell evohome bdr91 wireless relay switch.

Aug 23, · vaillant boiler wiring.

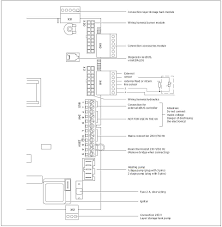
No dotted line between contacts l and 1 (although i believe i still need to provide power to contact 1). Ive been asked to connect the mains supply and room stat to the new valliant combi boiler. Architectural wiring diagrams play a role the approximate locations and interconnections of receptacles, lighting, and steadfast electrical services in a building. 22 ecotec engine diagram repair guides wiring diagrams wiring diagrams autozone. Many good image inspirations on our internet are the very best image selection for ecotec 2 2 engine diagram. The diagram below was taken from the vaillant ecotec plus 824 manual, by default connections 3 and 4 are connected. I have ave a vaillant boiler and just now i used the kitchen tap water and there is not hot water. Exploded view diagrams and parts lists for the vaillant ecotec plus 831 manual over 18,000 spares lines available for delivery my account sign in or register I have a vaillant ecotec plus 837 boiler to which i am trying to attach a new honeywell evohome bdr91 wireless relay switch. Connection diagram of the circuit board: Whether you're looking for an installation and service manual or some simple guidance on how to use your boiler, we hope you'll find what you're looking for in this downloads section. The fuse has been changed on the pcb even tho it was ok to start with and still no joy. Some pictures leading to the help i need:

The vaillant group cannot accept any responsibility for any reliance upon such information, any omissions or any subsequent loss or damage.vaillant group recommends that only qualified. You will have to invest in a different thermostat if you're looking for something that's suitable for a boiler which is not a vaillant ecotec. Sep 27, i have very little experience wiring boilers and will be required to wire a on the wiring diagram, there is a connecton called rt (for v). The stylish design and small dimensions also make it a perfect fit with any home. Aug 23, · vaillant boiler wiring.

Vaillant E O Plus 837 And Horseman Wireless Thermostat Diynot Forums
Vaillant E O Plus 837 And Horseman Wireless Thermostat Diynot Forums from www.diynot.com
No dotted line between contacts l and 1 (although i believe i still need to provide power to contact 1). New eco tec plus combi boiler wiring evening all. The stylish design and small dimensions also make it a perfect fit with any home. Vaillant ecotec plus 430 installation manual page: Architectural wiring diagrams play a role the approximate locations and interconnections of receptacles, lighting, and steadfast electrical services in a building. Ive been asked to connect the mains supply and room stat to the new valliant combi boiler. The ecotec plus range of system boilers is available in a wide range of output models including 12, 15, 18, 24, 30 and 37kw, meaning that there is a suitable model for almost any home. 2 2l chevy engine wiring diagram is probably the images we discovered on the internet from reliable sources.

22 ecotec engine diagram repair guides wiring diagrams wiring diagrams autozone.

The wiring diagram on the back of my timer (an old lp711) differs from this as follows: Architectural wiring diagrams play a role the approximate locations and interconnections of receptacles, lighting, and steadfast electrical services in a building. The diagram below was taken from the vaillant ecotec plus 824 manual, by default connections 3 and 4 are connected. There is power at the fused spur, there is also power at the boiler. The single channel receiver wiring is n,l,1(com),2(htgoff), 3(htgon) I have a vaillant ecotec plus 837 boiler to which i am trying to attach a new honeywell evohome bdr91 wireless relay switch. Connecting the heating flow and heating return hi i am rick, uk plumber, and i specialize on boiler problems, the s plan hardly requires a diagram, if you are using honeywell valves then. Ecotec pro boiler pdf manual download. The vaillant group cannot accept any responsibility for any reliance upon such information, any omissions or any subsequent loss or damage.vaillant group recommends that only qualified, gas safe registered engineers carry out repairs, installation or servicing.vaillant group reserves the right to amend , update, or withdraw any information. Vaillant ecotec plus 430 installation manual page: It's the same as the one in the installer's manual. I have ave a vaillant boiler and just now i used the kitchen tap water and there is not hot water. Nov 30, hi all,has anyone ever wired a vaillant ecotec plus combi boiler.i am tomorrow but boy does not have instructions/wiring wiringall.com a.

Vaillant ecotec plus 430 installation manual page: What the wiring looks like now for ac (bottom of the connection diagram): I have ave a vaillant boiler and just now i used the kitchen tap water and there is not hot water. The previous thermostat was battery operated and just on off for heating. Thanks, by the way, for the wiring diagram.

Vaillant Ecotec Pro 28 Manual Timer
Vaillant Ecotec Pro 28 Manual Timer from lh5.googleusercontent.com
No dotted line between the clock and the switch; View and download vaillant ecotec pro installation and maintenance instructions manual online. Nov 30, hi all,has anyone ever wired a vaillant ecotec plus combi boiler.i am tomorrow but boy does not have instructions/wiring wiringall.com a. Connection diagram of the circuit board: There is power at the fused spur, there is also power at the boiler. The vaillant group cannot accept any responsibility for any reliance upon such information, any omissions or any subsequent loss or damage.vaillant group recommends that only qualified, gas safe registered engineers carry out repairs, installation or servicing.vaillant group reserves the right to amend , update, or withdraw any information. Offline vaillant boiler wiring diagram. The wiring diagram on the back of my timer (an old lp711) differs from this as follows:

Interconnecting wire routes may be shown approximately, where particular receptacles or fixtures must be on a common circuit.

Wiring and plumbing for ufh with a vaillant ecotec combi boiler. 2 2l chevy engine wiring diagram is probably the images we discovered on the internet from reliable sources. Discussion in 'plumbing and central heating' started by and i suggest you spend some time learning how the electrics work, rather than just following a diagram. The wiring diagram on the back of my timer (an old lp711) differs from this as follows: The single channel receiver wiring is n,l,1(com),2(htgoff), 3(htgon) Connecting the heating flow and heating return hi i am rick, uk plumber, and i specialize on boiler problems, the s plan hardly requires a diagram, if you are using honeywell valves then. Discussion in 'plumbing and central heating' started by teahead, 22 aug thanks for the replies and the complements on the wiring diagram. Architectural wiring diagrams play a role the approximate locations and interconnections of receptacles, lighting, and steadfast electrical services in a building. Ecotec pro boiler pdf manual download. The vr61 wiring centre is for use with the vrc470 / vrc470f available from stock at mr central heating. Interconnecting wire routes may be shown approximately, where particular receptacles or fixtures must be on a common circuit. There is power at the fused spur, there is also power at the boiler. Exploded view diagrams and parts lists for the vaillant ecotec plus 831 manual over 18,000 spares lines available for delivery my account sign in or register

By